おすすめ
| 物件名 | No.11652187 堺市南区 三原台4丁 |
||
|---|---|---|---|
| 種別 | 中古一戸建て (現況:空家) | ||
| 所在地 | 堺市南区三原台4丁 | ||
| 交通 | 泉北高速鉄道 泉ケ丘駅 徒歩20分 |
||
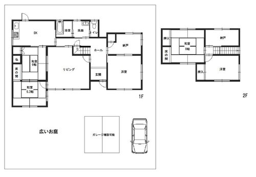
| 間取 | 5SLDK | ||
| 価格 | 3,700万円 (消費税:) | ||
| 建物面積 | 築年月 | 1975年02月 | |
| 土地(実測) | 土地(公簿) | 346.65m2 | |
| 学校 | 堺市立三原台小学校 堺市立三原台中学校 | ||
| 設備 | 都市ガス 上水道 下水道 | ||

| 引渡時期 | 相談 | 引渡年月 | |
|---|---|---|---|
| 間取り | 5SLDK | 方位 | |
| 私道面積 | 駐車場 | 空有 | |
| 土地権利 | 所有権 | 地勢 | |
| 建蔽率 | 40% | 容積率 | 80% |
| 接道状況 | 二方 | 国土法届出 | |
| 接道方向 | 南側 | 接道幅員 | |
| 接道方向 | 北側 | 接道幅員 | |
| 接道内容 | |||
| 構造 | 木造 | ||
| 間取備考 | |||
| 地目 | 宅地 | ||
| 用途地域 | 第一種低層住居専用地域 | ||
| 都市計画 | 市街化 | ||
| 他制限 | |||
| 建築確認番号 | 昭和49年5月20日第771号 | ||
| 備考 | ※2008年頃大規模リフォーム済み:1階バリアフリー工事、浴室、システムキッチン、洗面台、トイレ新調、クロス張替え、南西側洋室増築等※法22条※現状有姿、公簿取引、売主の契約不適合責任免責※増築未登記有(I/W) | ||
取引態様 仲介 更新日 2025-11-02
リウイルトラスト 本店

〒598-0007
大阪府泉佐野市上町1丁目11-45
【店舗紹介・アクセスマップ】
リウイルトラスト 和泉中央店

〒594-1104
大阪府和泉市万町60-6
【店舗紹介・アクセスマップ】
受付時間/9:00〜18:00
定休日/火曜・水曜