岸和田コーポラス3号棟 1階物件No.11676469


中古マンション

南海線 和泉大宮駅 徒歩15分

4LDK

700万円

 13 回 閲覧されました

 0 回 諸費用計算・ローンシミュレーションされました

諸費用計算・ローンシミュレーション

電話でのお問合せはこちら

☆1階部分♪専用庭付き♪ ☆中学校まで約240m♪ ☆4LDK♪

岸和田コーポラス3号棟のご紹介です♪
中学校まで約240mのため、お子様の通学に便利です♪
南向きの明るいお部屋です♪1階部分で専用庭付き♪
居住中につき内覧には予め予約が必要です♪お気軽にお問い合わせください!!

物件概要

物件名 No.11676469
岸和田コーポラス3号棟 1階
種別 中古マンション (現況:居住中)
所在地 岸和田市下野町2丁目 
交通 南海線 和泉大宮駅 徒歩15分
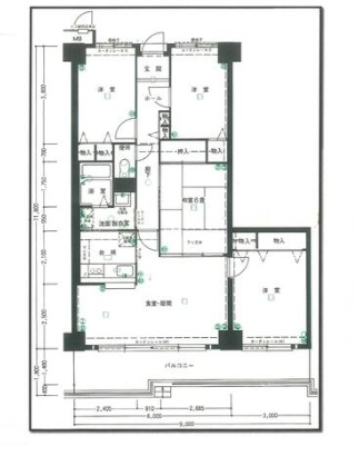
間取 4LDK 
価格 700万円 (消費税:)
管理費 4,740円 修繕積立金 6,050円
専有(壁芯) 84.7m2 専有(内法)
バルコニー 13.8m2 築年月 1984年07月 
学校 岸和田市立朝陽小学校 岸和田市立野村中学校 
設備 都市ガス 上水道 下水道 エレベータ バルコニー 

もっと見る

引渡時期   引渡年月
所在階 1階  総戸数 270戸
方位 駐車場  
構造 SRC造 地上11階
間取備考  
地目  
用途地域 第一種住居地域 
都市計画  
他制限  
管理組合 全部委託 (株)キクタメンテナンス 
備考 (I/W) 

取引態様 仲介 更新日 2026-04-18

アクセスマップ

この情報を共有する