おすすめ
電話でのお問合せはこちら 
◇土地面積:約76.10坪♪ 2階建て♪ ◇JR阪和線「熊取駅」徒歩約15分♪ ◇コンビニ・スーパー近くて生活至便

熊取町青葉台より中古戸建のご紹介です♪
土地面積広々約76.10坪♪多用途にお使いいただけます♪
周辺に商業施設も多数あり、日々のお買物には困りません♪
広々としたお庭付き♪家庭菜園やご趣味への活用にももってこいです♪
ぜひ一度ご内覧いただきたいお家です♪お問い合わせお待ちしております♪
| 物件名 | No.11671696 熊取町 青葉台1丁目 |
||
|---|---|---|---|
| 種別 | 中古一戸建て (現況:空家) | ||
| 所在地 | 泉南郡熊取町青葉台1丁目 | ||
| 交通 | JR阪和線 熊取駅 徒歩15分 JR関西空港線 日根野駅 徒歩20分 |
||
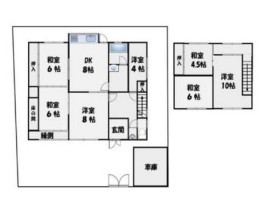
| 間取 | 6DK | ||
| 価格 | 1,780万円 (消費税:) | ||
| 建物面積 | 101.71m2 | 築年月 | 1973年12月 |
| 土地(実測) | 土地(公簿) | 251.58m2 | |
| 学校 | 熊取町立西小学校 熊取町立熊取中学校 | ||
| 設備 | 電気 都市ガス 上水道 下水道 システムキッチン 庭 | ||

| 引渡時期 | 即時 | 引渡年月 | |
|---|---|---|---|
| 間取り | 6DK | 方位 | |
| 私道面積 | 駐車場 | 空有 | |
| 土地権利 | 所有権 | 地勢 | |
| 建蔽率 | 50% | 容積率 | 100% |
| 接道状況 | 一方 | 国土法届出 | 否 |
| 接道方向 | 南東側 | 接道幅員 | 4.8m |
| 接道方向 | 接道幅員 | ||
| 接道内容 | |||
| 構造 | 木造 | ||
| 間取備考 | |||
| 地目 | 宅地 | ||
| 用途地域 | 第一種低層住居専用地域 | ||
| 都市計画 | 市街化 | ||
| 他制限 | |||
| 建築確認番号 | |||
| 備考 | (S/W) | ||
取引態様 仲介 更新日 2026-03-13
リウイルトラスト 本店

〒598-0007
大阪府泉佐野市上町1丁目11-45
【店舗紹介・アクセスマップ】
リウイルトラスト 和泉中央店

〒594-1104
大阪府和泉市万町60-6
【店舗紹介・アクセスマップ】
受付時間/9:00〜18:00
定休日/火曜・水曜