おすすめ

藤沢台3丁目の中古戸建のご紹介です♪
2025年6月建築の築浅注文住宅です♪
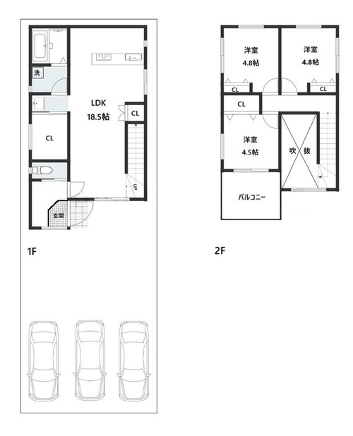
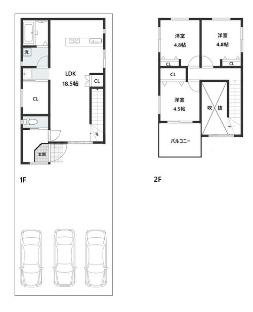
駐車スペース3台分ございます♪
太陽光発電付き♪
家族との会話が広がるリビング階段です♪
居住中につき内覧には予め予約が必要です♪
お気軽にお問い合わせください!!
| 物件名 | No.11664730 富田林市 藤沢台3丁目 |
||
|---|---|---|---|
| 種別 | 中古一戸建て (現況:居住中) | ||
| 所在地 | 富田林市藤沢台3丁目 | ||
| 交通 | 南海高野線 金剛駅 徒歩24分 |
||
| 間取 | 3LDK | ||
| 価格 | 5,198万円 (消費税:) | ||
| 建物面積 | 78.46m2 | 築年月 | 2025年06月 |
| 土地(実測) | 土地(公簿) | 158.34m2 | |
| 学校 | 富田林市立藤沢台小学校 富田林市立葛城中学校 | ||
| 設備 | 都市ガス 上水道 下水道 システムキッチン TVドアホン シャワートイレ カウンターキッチン 浴室乾燥機 太陽光発電 | ||

| 引渡時期 | 相談 | 引渡年月 | |
|---|---|---|---|
| 間取り | 3LDK | 方位 | |
| 私道面積 | 駐車場 | 空有 | |
| 土地権利 | 所有権 | 地勢 | 平坦 |
| 建蔽率 | 50% | 容積率 | 100% |
| 接道状況 | 一方 | 国土法届出 | |
| 接道方向 | 南西側 | 接道幅員 | 6m |
| 接道方向 | 接道幅員 | ||
| 接道内容 | |||
| 構造 | 木造 | ||
| 間取備考 | |||
| 地目 | 宅地 | ||
| 用途地域 | 第一種低層住居専用地域 | ||
| 都市計画 | 市街化 | ||
| 他制限 | |||
| 建築確認番号 | |||
| 備考 | (I/W) | ||
取引態様 仲介 更新日 2026-01-22
リウイルトラスト 本店

〒598-0007
大阪府泉佐野市上町1丁目11-45
【店舗紹介・アクセスマップ】
リウイルトラスト 和泉中央店

〒594-1104
大阪府和泉市万町60-6
【店舗紹介・アクセスマップ】
受付時間/9:00〜18:00
定休日/火曜・水曜