おすすめ
電話でのお問合せはこちら 
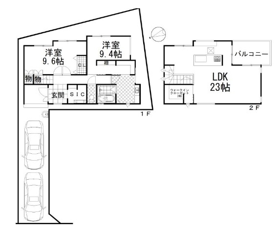
2025年12月室内改装済! 2LDK!LDK23帖! WICもあり収納スペース充実! 駐車2台可能!

泉南市中小路より中古戸建のご紹介です♪
2LDKの間取りです♪一部リフォームございます♪
特にLDKは23帖で広々としています♪
収納もたくさんあり、やったりとお住まいいただけます♪
お車2台駐車可能です♪ぜひ一度内覧いかがでしょうか♪
お問い合わせお待ちしております♪
お車2台駐車可能です♪
| 物件名 | No.11660227 泉南市 中小路2丁目 |
||
|---|---|---|---|
| 種別 | 中古一戸建て (現況:空家) | ||
| 所在地 | 泉南市中小路2丁目 | ||
| 交通 | 南海線 岡田浦駅 徒歩23分 JR阪和線 和泉砂川駅 徒歩23分 |
||
| 間取 | 2LDK | ||
| 価格 | 1,890万円 (消費税:) | ||
| 建物面積 | 104.75m2 | 築年月 | 2019年04月 |
| 土地(実測) | 土地(公簿) | 129.83m2 | |
| 学校 | 泉南市立信達, 泉南市立鳴滝小学校小学校 泉南市立信達, 泉南市立泉南中学校中学校 | ||
| 設備 | 電気 都市ガス 上水道 浄化槽 給湯 ウォークインクローゼット バルコニー シャワートイレ シューズクローク | ||

| 引渡時期 | 即時 | 引渡年月 | |
|---|---|---|---|
| 間取り | 2LDK | 方位 | |
| 私道面積 | 駐車場 | 空有 | |
| 土地権利 | 所有権 | 地勢 | 平坦 |
| 建蔽率 | 60% | 容積率 | 200% |
| 接道状況 | 一方 | 国土法届出 | |
| 接道方向 | 西側 | 接道幅員 | 6m |
| 接道方向 | 接道幅員 | ||
| 接道内容 | |||
| 構造 | 木造 | ||
| 間取備考 | |||
| 地目 | 宅地 | ||
| 用途地域 | 準工業地域 | ||
| 都市計画 | 市街化 | ||
| 他制限 | |||
| 建築確認番号 | |||
| 備考 | ※改装内容:クロス一部張替、洗面化粧台交換、ハウスクリーニング等 ※1階洋室9.6帖は間取り変更可能 ※令和6年度固定資産税額等:129,373円 ※司法書士指定 ※法22条 ※現況優先 (U/ ) |
||
取引態様 仲介 更新日 2025-12-12
リウイルトラスト 本店

〒598-0007
大阪府泉佐野市上町1丁目11-45
【店舗紹介・アクセスマップ】
リウイルトラスト 和泉中央店

〒594-1104
大阪府和泉市万町60-6
【店舗紹介・アクセスマップ】
受付時間/9:00〜18:00
定休日/火曜・水曜