おすすめ

岸和田コーポラスのご紹介です♪
南海本線「和泉大宮」駅徒歩15分♪
中学校へは約240mのため通学大変便利です♪
5階部分につき眺望良好です♪
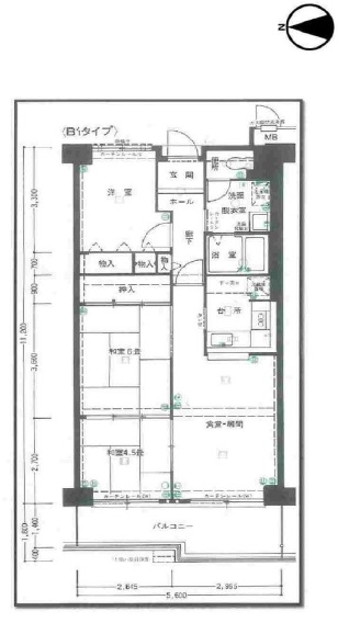
お住まいしやすい3LDKの間取りです♪
空家につきいつでも内覧可能です♪
お気軽にお問い合わせください!!
| 物件名 | No.11658550 岸和田コーポラス3号棟 5階 |
||
|---|---|---|---|
| 種別 | 中古マンション (現況:空家) | ||
| 所在地 | 岸和田市下野町2丁目 | ||
| 交通 | 南海線 和泉大宮駅 徒歩15分 |
||
| 間取 | 3LDK | ||
| 価格 | 750万円 (消費税:) | ||
| 管理費 | 3,520円 | 修繕積立金 | 4,520円 |
| 専有(壁芯) | 62.82m2 | 専有(内法) | |
| バルコニー | 8.96m2 | 築年月 | 1984年07月 |
| 学校 | 岸和田市立朝陽小学校 岸和田市立野村中学校 | ||
| 設備 | 都市ガス 上水道 下水道 エレベータ バルコニー | ||

| 引渡時期 | 引渡年月 | ||
|---|---|---|---|
| 所在階 | 5階 | 総戸数 | 270戸 |
| 方位 | 西 | 駐車場 | |
| 構造 | SRC造 地上11階 | ||
| 間取備考 | |||
| 地目 | |||
| 用途地域 | 第一種住居地域 | ||
| 都市計画 | |||
| 他制限 | |||
| 管理組合 | 全部委託 (株)キクタメンテナンス | ||
| 備考 | (SS/W) | ||
取引態様 仲介 更新日 2025-11-29
リウイルトラスト 本店

〒598-0007
大阪府泉佐野市上町1丁目11-45
【店舗紹介・アクセスマップ】
リウイルトラスト 和泉中央店

〒594-1104
大阪府和泉市万町60-6
【店舗紹介・アクセスマップ】
受付時間/9:00〜18:00
定休日/火曜・水曜