おすすめ
電話でのお問合せはこちら 
☆オーナーチェンジ物件 令和2年11月築! ☆泉佐野駅徒歩4分! ☆土地67.40坪! ◇南海電鉄本線「泉佐野駅」徒歩約4分♪

大宮町よりオーナーチェンジ物件のご紹介です♪
令和2年11月築の築浅物件♪
土地約67.40坪と広々しております♪
周辺には買い物施設や飲食店が充実しております♪
想定利回り:6.2% 満室時想定利回り:約6.29%♪
ぜひ一度ご内覧いただきたいお家です♪お問い合わせお待ちしております♪
| 物件名 | No.11657795 Sun Garden大宮(アパート) |
||
|---|---|---|---|
| 種別 | 中古一戸建て (現況:賃貸中) | ||
| 所在地 | 泉佐野市大宮町 | ||
| 交通 | 南海線 泉佐野駅 徒歩4分 南海線 井原里駅 徒歩22分 |
||
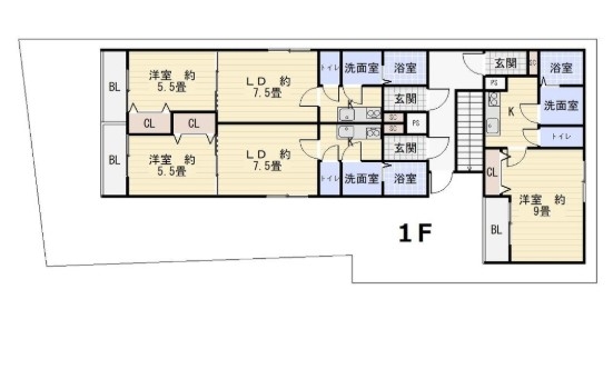
| 間取 | |||
| 価格 | 12,300万円 (消費税:) | ||
| 建物面積 | 359.07m2 | 築年月 | 2020年11月 |
| 土地(実測) | 土地(公簿) | 222.83m2 | |
| 学校 | 泉佐野市立第二小学校 泉佐野市立佐野中学校 | ||
| 設備 | |||

| 引渡時期 | 相談 | 引渡年月 | |
|---|---|---|---|
| 間取り | 方位 | ||
| 私道面積 | 駐車場 | ||
| 土地権利 | 所有権 | 地勢 | 平坦 |
| 建蔽率 | 60% | 容積率 | 200% |
| 接道状況 | 一方 | 国土法届出 | 否 |
| 接道方向 | 北西側 | 接道幅員 | 4m |
| 接道方向 | 接道幅員 | ||
| 接道内容 | |||
| 構造 | 木造 | ||
| 間取備考 | |||
| 地目 | 宅地 | ||
| 用途地域 | 準工業地域 | ||
| 都市計画 | 市街化 | ||
| 他制限 | |||
| 建築確認番号 | |||
| 備考 | ※想定利回り:6.2% 満室時想定利回り:約6.29% ※泉佐野市立第三小学校(距離397m)選択可能※建築基準法第22条指定区域等※景観法※文化財保護法 |
||
取引態様 仲介 更新日 2026-04-06
リウイルトラスト 本店

〒598-0007
大阪府泉佐野市上町1丁目11-45
【店舗紹介・アクセスマップ】
リウイルトラスト 和泉中央店

〒594-1104
大阪府和泉市万町60-6
【店舗紹介・アクセスマップ】
受付時間/9:00〜18:00
定休日/火曜・水曜