おすすめ
電話でのお問合せはこちら 
☆和・モダンをテーマに設備・内装を全て一新♪ ☆琉球畳の落ち着いた和室♪ ☆3LDKの間取り♪

ライオンズマンション泉北忠岡のご紹介です♪
JR阪和線「和泉府中」駅徒歩20分です♪
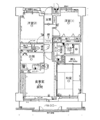
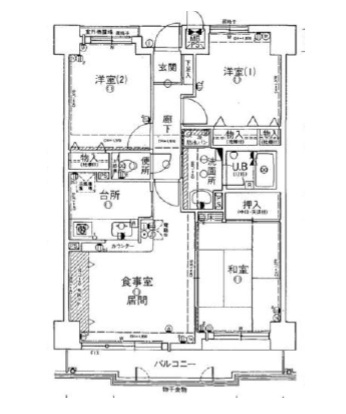
3LDKの暮らしやすい間取りです♪
和・モダンをテーマに設備・内装を全て一新♪
リフォーム済みのため快く新生活を始めていただけます♪
空家につきいつでも内覧可能です♪
お気軽にお問い合わせください!!
| 物件名 | No.11652913 ライオンズマンション泉北忠岡 2階 |
||
|---|---|---|---|
| 種別 | 中古マンション (現況:空家) | ||
| 所在地 | 泉北郡忠岡町高月北1丁目 | ||
| 交通 | JR阪和線 和泉府中駅 徒歩20分 |
||
| 間取 | 3LDK | ||
| 価格 | 1,250万円 (消費税:) | ||
| 管理費 | 12,800円 | 修繕積立金 | 10,360円 |
| 専有(壁芯) | 68.75m2 | 専有(内法) | |
| バルコニー | 8.4m2 | 築年月 | 1992年02月 |
| 学校 | 忠岡町立東忠岡小学校 忠岡町立忠岡中学校 | ||
| 設備 | 都市ガス 上水道 下水道 エレベータ バルコニー カウンターキッチン 浴室乾燥機 | ||

| 引渡時期 | 相談 | 引渡年月 | |
|---|---|---|---|
| 所在階 | 2階 | 総戸数 | 56戸 |
| 方位 | 駐車場 | ||
| 構造 | RC造 地上8階 | ||
| 間取備考 | |||
| 地目 | |||
| 用途地域 | 準工業地域 | ||
| 都市計画 | |||
| 他制限 | |||
| 管理組合 | 全部委託 大京アステージ | ||
| 備考 | ※令和7年10月フルリフォーム:浴室(浴室乾燥機・追い焚き付き)・給湯器・システムキッチン・トイレ・洗面化粧台交換、全室クロス張替え、CF貼替(トイレ・洗面・玄関)、フロアタイル新調(リビング・廊下)、琉球畳新設(和室)、襖張替え、モニターホン・電気スイッチ交換(U/) | ||
取引態様 仲介 更新日 2025-11-25
リウイルトラスト 本店

〒598-0007
大阪府泉佐野市上町1丁目11-45
【店舗紹介・アクセスマップ】
リウイルトラスト 和泉中央店

〒594-1104
大阪府和泉市万町60-6
【店舗紹介・アクセスマップ】
受付時間/9:00〜18:00
定休日/火曜・水曜