新着物件
電話でのお問合せはこちら 
◇土地面積:約33.78坪♪ 広々和室続き間14帖♪ ◇屋根付き駐車場2台分♪ ◇JR阪和線「東貝塚駅」徒歩約7分♪

半田2丁目より中古戸建のご紹介です♪
JR阪和線「東貝塚駅」徒歩約7分の好立地♪
裏側隣地もすっきりした静かな住宅地です♪
建物の状態は経年比較的には良好です♪
土地面積約33.78坪ございます♪
屋根付き駐車場2台分ございます♪
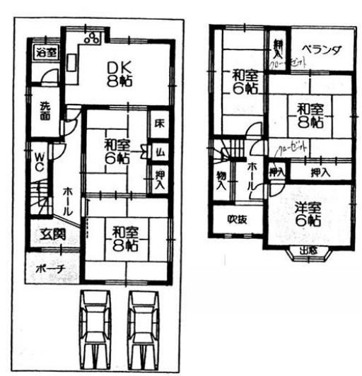
全居室約6帖以上でゆったりと過ごせます♪
ぜひ一度ご内覧いただきたいお家です♪お問い合わせお待ちしております♪
| 物件名 | No.11651835 貝塚市 半田2丁目 |
||
|---|---|---|---|
| 種別 | 中古一戸建て (現況:空家) | ||
| 所在地 | 貝塚市半田2丁目 | ||
| 交通 | JR阪和線 東貝塚駅 徒歩7分 JR阪和線 東岸和田駅 徒歩17分 |
||
| 間取 | 5DK | ||
| 価格 | 1,280万円 (消費税:) | ||
| 建物面積 | 99.42m2 | 築年月 | 1986年03月 |
| 土地(実測) | 土地(公簿) | 111.69m2 | |
| 学校 | 貝塚市立中央小学校 貝塚市立第二中学校 | ||
| 設備 | 都市ガス 上水道 浄化槽 バルコニー | ||

| 引渡時期 | 即時 | 引渡年月 | |
|---|---|---|---|
| 間取り | 5DK | 方位 | |
| 私道面積 | 駐車場 | 空有 | |
| 土地権利 | 所有権 | 地勢 | 平坦 |
| 建蔽率 | 60% | 容積率 | 200% |
| 接道状況 | 一方 | 国土法届出 | 否 |
| 接道方向 | 東側 | 接道幅員 | 4.7m |
| 接道方向 | 接道幅員 | ||
| 接道内容 | |||
| 構造 | 木造 | ||
| 間取備考 | |||
| 地目 | 宅地 | ||
| 用途地域 | 準工業地域 | ||
| 都市計画 | 市街化 | ||
| 他制限 | |||
| 建築確認番号 | |||
| 備考 | ※位置指定道路:約10.9m接道 (SS/W) |
||
取引態様 仲介 更新日 2025-12-04
リウイルトラスト 本店

〒598-0007
大阪府泉佐野市上町1丁目11-45
【店舗紹介・アクセスマップ】
リウイルトラスト 和泉中央店

〒594-1104
大阪府和泉市万町60-6
【店舗紹介・アクセスマップ】
受付時間/9:00〜18:00
定休日/火曜・水曜