おすすめ
電話でのお問合せはこちら 
☆南海本線岸和田駅徒歩2分! ☆南西向きバルコニーにつき日当たり良好♪ ☆ディスポーザー、ミストサウナ完備♪

エスリード岸和田駅前のご紹介です♪
南海本線「岸和田」駅徒歩2分の好立地です♪
ペット飼育可能です♪(規約有)
ミストサウナ機能付浴室暖房付きです♪
南西向きバルコニーにつき日当たり良好です♪
居住中につき内覧には予め予約が必要です。
お気軽にお問い合わせください!!
| 物件名 | No.11650146 エスリード岸和田駅前 4階 |
||
|---|---|---|---|
| 種別 | 中古マンション (現況:居住中) | ||
| 所在地 | 岸和田市沼町 | ||
| 交通 | 南海線 岸和田駅 徒歩2分 |
||
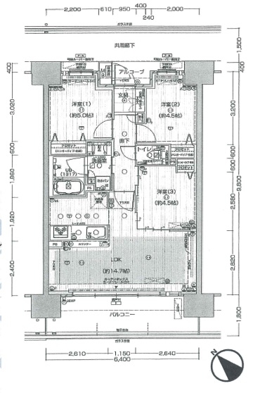
| 間取 | 3LDK | ||
| 価格 | 3,460万円 (消費税:) | ||
| 管理費 | 7,700円 | 修繕積立金 | 8,100円 |
| 専有(壁芯) | 61.4m2 | 専有(内法) | |
| バルコニー | 11.52m2 | 築年月 | 2022年02月 |
| 学校 | 岸和田市立朝陽小学校 岸和田市立野村中学校 | ||
| 設備 | 都市ガス 上水道 下水道 オートロック システムキッチン シャンプードレッサー CATV バルコニー 床暖房 カウンターキッチン 浴室乾燥機 | ||

| 引渡時期 | 相談 | 引渡年月 | |
|---|---|---|---|
| 所在階 | 4階 | 総戸数 | 117戸 |
| 方位 | 南西 | 駐車場 | 空有 |
| 構造 | RC造 地上14階 | ||
| 間取備考 | |||
| 地目 | |||
| 用途地域 | 近隣商業地域 | ||
| 都市計画 | |||
| 他制限 | |||
| 管理組合 | 全部委託 エスリード建物管理 | ||
| 備考 | ※破産管財物件につき売主は契約不適合責任を負いません。(S/W) | ||
取引態様 仲介 更新日 2025-09-26
リウイルトラスト 本店

〒598-0007
大阪府泉佐野市上町1丁目11-45
【店舗紹介・アクセスマップ】
リウイルトラスト 和泉中央店

〒594-1104
大阪府和泉市万町60-6
【店舗紹介・アクセスマップ】
受付時間/9:00〜18:00
定休日/火曜・水曜