おすすめ
| 物件名 | No.11646172 富田林市 北大伴町2丁目 第2-6号棟 |
||
|---|---|---|---|
| 種別 | 新築一戸建て (現況:居住中) | ||
| 所在地 | 富田林市北大伴町2丁目 | ||
| 交通 | 徒歩25分 |
||
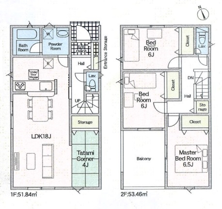
| 間取 | 3LDK | ||
| 価格 | 2,580万円 (消費税:) | ||
| 建物面積 | 95.58m2 | 築年月 | 2025年11月 |
| 土地(実測) | 土地(公簿) | 154.95m2 | |
| 学校 | 富田林市立大伴小学校 富田林市立第三中学校 | ||
| 設備 | 都市ガス 上水道 下水道 システムキッチン シャンプードレッサー 床下収納 バルコニー TVドアホン シャワートイレ カウンターキッチン 浴室乾燥機 | ||

| 引渡時期 | 期日指定 | 引渡年月 | 2025年11月 下旬 |
|---|---|---|---|
| 間取り | 3LDK | 方位 | |
| 私道面積 | 駐車場 | 空有 | |
| 土地権利 | 所有権 | 地勢 | 平坦 |
| 建蔽率 | 60% | 容積率 | 196% |
| 接道状況 | 一方 | 国土法届出 | |
| 接道方向 | 北側 | 接道幅員 | 4.9m |
| 接道方向 | 接道幅員 | ||
| 接道内容 | |||
| 構造 | 木造 | ||
| 間取備考 | |||
| 地目 | 宅地 | ||
| 用途地域 | 第二種中高層住居専用地域 | ||
| 都市計画 | 市街化 | ||
| 他制限 | |||
| 建築確認番号 | 第R07SHC111538号 | ||
| 備考 | ※宅地造成工事規制区域 ※準防火地域 ※前面道路幅員制限による容積率 ※敷地面積に路地状部分約36平米を含む ※延床面積に別途ルーフバルコニー約8.51平米有り ※現況優先 (U/ASK) |
||
取引態様 仲介 更新日 2025-08-30
リウイルトラスト 本店

〒598-0007
大阪府泉佐野市上町1丁目11-45
【店舗紹介・アクセスマップ】
リウイルトラスト 和泉中央店

〒594-1104
大阪府和泉市万町60-6
【店舗紹介・アクセスマップ】
受付時間/9:00〜18:00
定休日/火曜・水曜