おすすめ
| 物件名 | No.11645157 岸和田市 内畑町 |
||
|---|---|---|---|
| 種別 | 中古一戸建て (現況:空家) | ||
| 所在地 | 岸和田市内畑町 | ||
| 交通 | JR阪和線 久米田駅 バス乗車20分 内畑 停歩6分 |
||
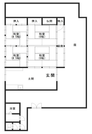
| 間取 | 4LDK | ||
| 価格 | 960万円 (消費税:) | ||
| 建物面積 | 76.03m2 | 築年月 | 1970年10月 |
| 土地(実測) | 土地(公簿) | 357.02m2 | |
| 学校 | 岸和田市立山滝小学校 岸和田市立山滝中学校 | ||
| 設備 | |||

| 引渡時期 | 相談 | 引渡年月 | |
|---|---|---|---|
| 間取り | 4LDK | 方位 | |
| 私道面積 | 駐車場 | 近隣 | |
| 土地権利 | 所有権 | 地勢 | |
| 建蔽率 | 60% | 容積率 | 200% |
| 接道状況 | 国土法届出 | ||
| 接道方向 | 接道幅員 | ||
| 接道方向 | 接道幅員 | ||
| 接道内容 | |||
| 構造 | 木造 | ||
| 間取備考 | |||
| 地目 | 宅地 | ||
| 用途地域 | 無指定 | ||
| 都市計画 | 調整 | ||
| 他制限 | |||
| 建築確認番号 | |||
| 備考 | ※本物件は市街化調整区域内にあるため原則として建物の建替・増築・改築はできません。 ※増築部分及び附属建物は未登記です。 ※LDKは土間です。 (SS/W) |
||
取引態様 仲介 更新日 2025-10-26
リウイルトラスト 本店

〒598-0007
大阪府泉佐野市上町1丁目11-45
【店舗紹介・アクセスマップ】
リウイルトラスト 和泉中央店

〒594-1104
大阪府和泉市万町60-6
【店舗紹介・アクセスマップ】
受付時間/9:00〜18:00
定休日/火曜・水曜