泉佐野市 泉ヶ丘3丁目物件No.11644028


中古一戸建て

JR阪和線 東佐野駅 徒歩9分

3LDK

7,980万円

 105 回 閲覧されました

 0 回 諸費用計算・ローンシミュレーションされました

諸費用計算・ローンシミュレーション

電話でのお問合せはこちら

◇土地面積:約80.35坪♪ 京セラ製太陽光6kw搭載♪ ◇JR阪和線「東佐野」駅まで徒歩3分の好立地! ◇駐車場5台分あり(車種による) ◇ゆとりの設計で室内とても広いです

泉佐野絵泉ヶ丘3丁目より中古戸建のご紹介です♪
JR阪和線「東佐野」駅まで徒歩3分の好立地♪
駐車場5台分あり♪ご友人を招き入れても余裕があります♪
土地面積約80.35坪♪多用途にお使いいただけます♪
京セラ製太陽光6kw搭載♪オール電化物件のため光熱費の削減が期待できます♪
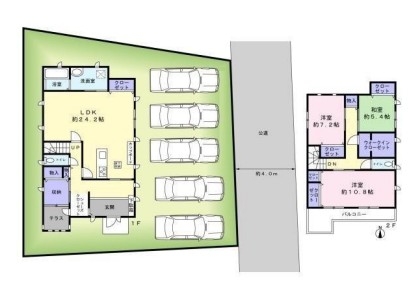
LDKは広々約24.2帖♪家族団欒が楽しめます♪
各居室収納豊富なため、お荷物には困りません♪
ぜひ一度ご内覧いただきたいお家です♪お問い合わせお待ちしております♪

物件概要

物件名 No.11644028
泉佐野市 泉ヶ丘3丁目
種別 中古一戸建て (現況:居住中)
所在地 泉佐野市泉ケ丘3丁目 
交通 JR阪和線 東佐野駅 徒歩9分
間取 3LDK 
価格 7,980万円 (消費税:)
建物面積 145m2  築年月 2014年03月 
土地(実測)   土地(公簿) 265.65m2 
学校 泉佐野市立長坂小学校 泉佐野市立第三中学校 
設備 電気 上水道 下水道 システムキッチン 追い焚き シャンプードレッサー 床下収納 ウォークインクローゼット 専用庭 TVドアホン シャワートイレ オール電化 カウンターキッチン IHクッキングヒーター シューズクローク 

もっと見る

引渡時期 相談  引渡年月
間取り 3LDK  方位  
私道面積   駐車場 空有 
土地権利 所有権  地勢 平坦 
建蔽率 40%  容積率 80% 
接道状況 一方  国土法届出 否 
接道方向 東側  接道幅員 4m 
接道方向   接道幅員  
接道内容  
構造 木造  
間取備考  
地目 宅地 
用途地域 第一種低層住居専用地域 
都市計画 市街化 
他制限 風致 
建築確認番号 H25確認建築防大03445 
備考 ※オール電化(はぴeタイム契約)で光熱費削減
※太陽光発電6KVA付き、年間約64,733円の売電収入実績あり
※食洗器・魚焼きグリルは未使用新品
※1818サイズ大型浴室、浴室暖房乾燥機付き
(S/W) 

取引態様 仲介 更新日 2026-02-13

その他写真

アクセスマップ

この情報を共有する