おすすめ

加守町1丁目の店舗付き住宅のご紹介です♪
南海本線「春木」駅徒歩8分です♪
角地にございます♪
土地面積約80.3坪ございます♪
オーナーチェンジ物件です♪
お気軽にお問い合わせください!!
| 物件名 | No.11640442 加守町1丁目店舗付き住宅 |
||
|---|---|---|---|
| 種別 | 店舗付住宅 (現況:居住中) | ||
| 所在地 | 岸和田市加守町1丁目 | ||
| 交通 | 南海線 春木駅 徒歩8分 |
||
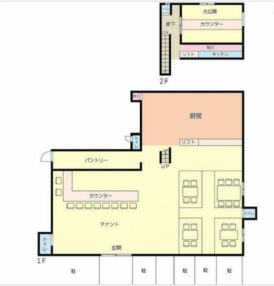
| 間取 | |||
| 価格 | 7,200万円 (消費税:) | ||
| 建物面積 | 築年月 | 2003年11月 | |
| 土地(実測) | 土地(公簿) | ||
| 学校 | 岸和田市立大宮小学校 岸和田市立野村中学校 | ||
| 設備 | PG 給湯 | ||

| 引渡時期 | 相談 | 引渡年月 | |
|---|---|---|---|
| 間取り | 方位 | ||
| 私道面積 | 駐車場 | 空有 | |
| 土地権利 | 所有権 | 地勢 | |
| 建蔽率 | 60% | 容積率 | 200% |
| 接道状況 | 角地 | 国土法届出 | |
| 接道方向 | 東側 | 接道幅員 | 16m |
| 接道方向 | 南側 | 接道幅員 | 3m |
| 接道内容 | |||
| 構造 | 鉄骨造 | ||
| 間取備考 | |||
| 地目 | 宅地 | ||
| 用途地域 | 準工業地域 | ||
| 都市計画 | 市街化 | ||
| 他制限 | |||
| 建築確認番号 | |||
| 備考 | ※現在住居部分は、家主居住中ですが、退去した後は、店舗部分の借主が、賃料8万円で契約予定です。(S/) | ||
取引態様 仲介 更新日 2025-07-17
リウイルトラスト 本店

〒598-0007
大阪府泉佐野市上町1丁目11-45
【店舗紹介・アクセスマップ】
リウイルトラスト 和泉中央店

〒594-1104
大阪府和泉市万町60-6
【店舗紹介・アクセスマップ】
受付時間/9:00〜18:00
定休日/火曜・水曜