おすすめ
電話でのお問合せはこちら 
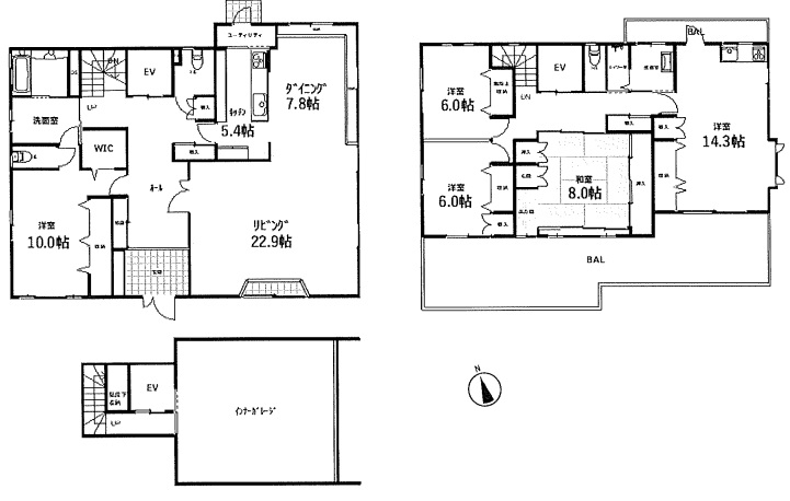
◆旭化成ヘーベルハウス施工のお家 ◆豪華なつくりの5LDK! ◆室内は丁寧に使用されており大変綺麗です♪ ◆ホームエレベーター・2階にミニキッチンとシャワーあり!
| 物件名 | No.11638882 河内長野市 大矢船南町 |
||
|---|---|---|---|
| 種別 | 中古一戸建て (現況:居住中) | ||
| 所在地 | 河内長野市大矢船南町 | ||
| 交通 | 南海高野線 三日市町駅 バス乗車16分 大矢船南町 停歩2分 南海高野線 美加の台駅 |
||
| 間取 | 5LDK | ||
| 価格 | 4,480万円 (消費税:) | ||
| 建物面積 | 235.3m2 | 築年月 | 1999年11月 |
| 土地(実測) | 土地(公簿) | 272.34m2 | |
| 学校 | 河内長野市立加賀田小学校 河内長野市立加賀田中学校 | ||
| 設備 | 都市ガス 上水道 下水道 システムキッチン バルコニー | ||

| 引渡時期 | 相談 | 引渡年月 | |
|---|---|---|---|
| 間取り | 5LDK | 方位 | |
| 私道面積 | 駐車場 | 空有 | |
| 土地権利 | 所有権 | 地勢 | |
| 建蔽率 | 50% | 容積率 | 100% |
| 接道状況 | 一方 | 国土法届出 | |
| 接道方向 | 東側 | 接道幅員 | 11.6m |
| 接道方向 | 接道幅員 | ||
| 接道内容 | |||
| 構造 | 軽量鉄骨造 | ||
| 間取備考 | |||
| 地目 | 宅地 | ||
| 用途地域 | 第一種低層住居専用地域 | ||
| 都市計画 | 市街化 | ||
| 他制限 | |||
| 建築確認番号 | |||
| 備考 | ※居住中 ※外壁後退1m ※契約不適合責任免責 ※別途車庫部分:鉄筋コンクリート造陸屋根平屋建49.79?の登記あり (S/W) |
||
取引態様 仲介 更新日 2025-07-06
リウイルトラスト 本店

〒598-0007
大阪府泉佐野市上町1丁目11-45
【店舗紹介・アクセスマップ】
リウイルトラスト 和泉中央店

〒594-1104
大阪府和泉市万町60-6
【店舗紹介・アクセスマップ】
受付時間/9:00〜18:00
定休日/火曜・水曜