おすすめ
電話でのお問合せはこちら 
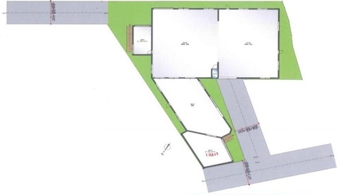
☆工場・作業場・倉庫お探しの方!見学大歓迎 ☆2階は居住(3部屋+キッチン+ダイニング) ☆行動2方向接面 出入り2か所の為、会社用自宅用に使い分けできます

池尻町の工場つき戸建のご紹介です♪
JR阪和線「久米田」駅徒歩16分♪
公道2方向に接面しており、会社用と自宅用とに使い分けしていただけます♪
空家につきいつでも内覧可能です♪
お気軽にお問い合わせください!!
| 物件名 | No.11626712 池尻町売工場 |
||
|---|---|---|---|
| 種別 | 工場 倉庫 (現況:空家) | ||
| 所在地 | 岸和田市池尻町 | ||
| 交通 | JR阪和線 久米田駅 徒歩17分 |
||
| 価格 | 2,880万円 (消費税:) | ||
| 専有(壁芯) | 422.18m2 | 専有(内法) | |
| 建物面積 | 築年月 | 1972年01月 | |
| 土地(実測) | 土地(公簿) | ||
| 学校 | 岸和田市立八木, 一部で調整区域あり小学校 岸和田市立久米田中学校 | ||
| 設備 | |||

| 引渡時期 | 即時 | 引渡年月 | |
|---|---|---|---|
| 所在階 | 方位 | ||
| 私道面積 | 駐車場 | 空有 | |
| 土地権利 | 所有権 | 地勢 | 平坦 |
| 接道状況 | 二方 | 国土法届出 | |
| 接道方向 | 北西側 | 接道幅員 | 4.2m |
| 接道方向 | 北東側 | 接道幅員 | 4m |
| 接道内容 | |||
| 構造 | 鉄骨造 | ||
| 間取備考 | |||
| 地目 | 宅地 | ||
| 用途地域 | 第一種住居地域 | ||
| 都市計画 | 市街化 | ||
| 他制限 | |||
| 学校 | 岸和田市立八木 岸和田市立久米田 | ||
取引態様 仲介 更新日 2025-12-19
リウイルトラスト 本店

〒598-0007
大阪府泉佐野市上町1丁目11-45
【店舗紹介・アクセスマップ】
リウイルトラスト 和泉中央店

〒594-1104
大阪府和泉市万町60-6
【店舗紹介・アクセスマップ】
受付時間/9:00〜18:00
定休日/火曜・水曜