おすすめ
電話でのお問合せはこちら 
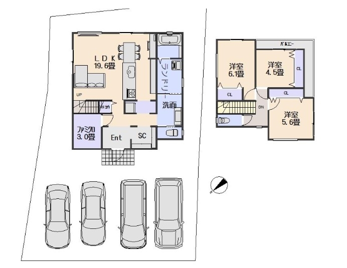
☆南海本線「高石」駅徒歩8分♪ ☆間取り変更・設備の選択も可能♪ ☆土地面積広々約61.28坪♪

高師浜1丁目の新築戸建のご紹介です♪
南海本線「高石」駅徒歩8分の好立地です♪
間取り変更可能♪設備の選択も可能です♪
資金計画等お家に関することは何でもお気軽にご相談ください!!
お気軽にお問い合わせください!!
| 物件名 | No.11618904 高石市 高師浜1丁目 |
||
|---|---|---|---|
| 種別 | 新築一戸建て (現況:) | ||
| 所在地 | 高石市高師浜1丁目 | ||
| 交通 | 南海線 高石駅 徒歩8分 |
||
| 間取 | 3LDK | ||
| 価格 | 4,980万円 (消費税:) | ||
| 建物面積 | 100m2 | 築年月 | |
| 土地(実測) | 土地(公簿) | 202.61m2 | |
| 学校 | 高石市立羽衣小学校 高石市立高石中学校 | ||
| 設備 | 都市ガス 上水道 下水道 バルコニー カウンターキッチン シューズクローク | ||

| 引渡時期 | 相談 | 引渡年月 | |
|---|---|---|---|
| 間取り | 3LDK | 方位 | |
| 私道面積 | 駐車場 | 空有 | |
| 土地権利 | 所有権 | 地勢 | 平坦 |
| 建蔽率 | 60% | 容積率 | 200% |
| 接道状況 | 一方 | 国土法届出 | |
| 接道方向 | 北西側 | 接道幅員 | 4m |
| 接道方向 | 接道幅員 | ||
| 接道内容 | |||
| 構造 | 木造 | ||
| 間取備考 | |||
| 地目 | 宅地 | ||
| 用途地域 | 第一種中高層住居専用地域 | ||
| 都市計画 | 市街化 | ||
| 他制限 | |||
| 建築確認番号 | |||
| 備考 | ※別途費用:外構費、設計確認否、性能保証等200万円必要※現況仮測量実施日2024年12月、面積198.50平米(60.04坪)(I/W) | ||
取引態様 仲介 更新日 2025-03-16
リウイルトラスト 本店

〒598-0007
大阪府泉佐野市上町1丁目11-45
【店舗紹介・アクセスマップ】
リウイルトラスト 和泉中央店

〒594-1104
大阪府和泉市万町60-6
【店舗紹介・アクセスマップ】
受付時間/9:00〜18:00
定休日/火曜・水曜