おすすめ
電話でのお問合せはこちら 
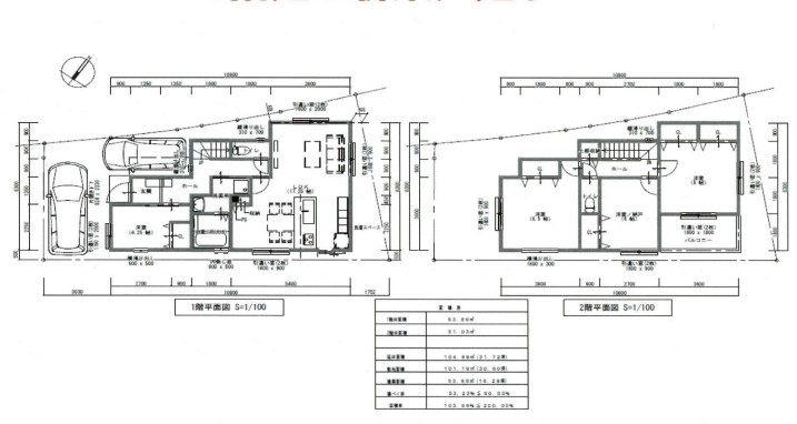
◇2階建て新築戸建 ◇4LDKの間取り ◇駐車2台可能 ◇南海電鉄高野線『河内長野駅』より徒歩約8分
| 物件名 | No.11609993 河内長野市 栄町 |
||
|---|---|---|---|
| 種別 | 新築一戸建て (現況:) | ||
| 所在地 | 河内長野市栄町 | ||
| 交通 | 南海高野線 河内長野駅 徒歩8分 南海高野線 三日市町駅 徒歩22分 |
||
| 間取 | 4LDK | ||
| 価格 | 3,480万円 (消費税:) | ||
| 建物面積 | 104.89m2 | 築年月 | |
| 土地(実測) | 土地(公簿) | 101.19m2 | |
| 学校 | 河内長野市立長野小学校 河内長野市立長野中学校 | ||
| 設備 | 電気 都市ガス 上水道 下水道 オートロック バルコニー TVドアホン カウンターキッチン | ||

| 引渡時期 | 相談 | 引渡年月 | |
|---|---|---|---|
| 間取り | 4LDK | 方位 | |
| 私道面積 | 駐車場 | 空有 | |
| 土地権利 | 所有権 | 地勢 | 平坦 |
| 建蔽率 | 60% | 容積率 | 200% |
| 接道状況 | 一方 | 国土法届出 | 否 |
| 接道方向 | 北側 | 接道幅員 | 6.45m |
| 接道方向 | 接道幅員 | ||
| 接道内容 | |||
| 構造 | 木造 | ||
| 間取備考 | |||
| 地目 | 宅地 | ||
| 用途地域 | 第二種中高層住居専用地域 | ||
| 都市計画 | 市街化 | ||
| 他制限 | 高度 | ||
| 建築確認番号 | |||
| 備考 | ※第2種高度地域 ※公共下水処理区域 (U/SB) |
||
取引態様 仲介 更新日 2026-01-29
リウイルトラスト 本店

〒598-0007
大阪府泉佐野市上町1丁目11-45
【店舗紹介・アクセスマップ】
リウイルトラスト 和泉中央店

〒594-1104
大阪府和泉市万町60-6
【店舗紹介・アクセスマップ】
受付時間/9:00〜18:00
定休日/火曜・水曜