おすすめ

泉佐野市土丸から貴重な平家の中古戸建のご紹介です♪
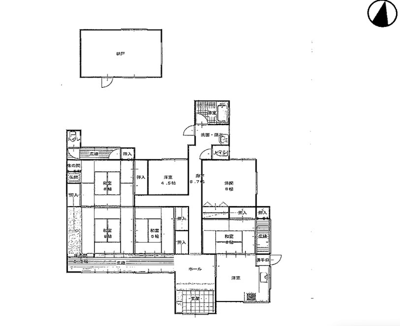
土地面積約500坪♪建物面積約52.99坪♪間取り6DK♪静かな地域でゆっくりとした生活を送られたい方や介護施設としてご利用されたい方にオススメです♪是非一度ご内覧されてみてはいかがでしょうか♪お問い合わせお待ちしております♪
| 物件名 | No.11607490 泉佐野市 土丸 |
||
|---|---|---|---|
| 種別 | 中古一戸建て (現況:空家) | ||
| 所在地 | 泉佐野市土丸 | ||
| 交通 | JR阪和線 日根野駅 バス乗車14分 停歩4分 |
||
| 間取 | 6LDK | ||
| 価格 | 3,580万円 (消費税:) | ||
| 建物面積 | 175.19m2 | 築年月 | 2000年03月 |
| 土地(実測) | 土地(公簿) | 1655m2 | |
| 学校 | 泉佐野市立日根野小学校 泉佐野市立日根野中学校 | ||
| 設備 | PG 上水道 汲取 | ||

| 引渡時期 | 相談 | 引渡年月 | |
|---|---|---|---|
| 間取り | 6LDK | 方位 | |
| 私道面積 | 駐車場 | 空有 | |
| 土地権利 | 所有権 | 地勢 | 高台 |
| 建蔽率 | 60% | 容積率 | 200% |
| 接道状況 | 一方 | 国土法届出 | |
| 接道方向 | 東側 | 接道幅員 | 6m |
| 接道方向 | 接道幅員 | ||
| 接道内容 | |||
| 構造 | 木造 | ||
| 間取備考 | |||
| 地目 | 宅地 | ||
| 用途地域 | 無指定 | ||
| 都市計画 | 調整 | ||
| 他制限 | |||
| 建築確認番号 | |||
| 備考 | ※再建築時、府・市との協議が必要です。都市計画法 審査基準(提案基準27-2参照)(SS/W) | ||
取引態様 仲介 更新日 2025-10-03
リウイルトラスト 本店

〒598-0007
大阪府泉佐野市上町1丁目11-45
【店舗紹介・アクセスマップ】
リウイルトラスト 和泉中央店

〒594-1104
大阪府和泉市万町60-6
【店舗紹介・アクセスマップ】
受付時間/9:00〜18:00
定休日/火曜・水曜