おすすめ
電話でのお問合せはこちら 
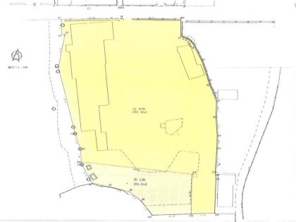
土地面積広々617.13坪! 建築条件無し! お好きなハウスメーカー・工務店で建てられます! 南海電鉄本線「淡輪」駅まで徒歩4分!

泉南郡岬町淡輪売土地のご案内です♪
土地面積は広々約617坪の平坦地♪建築条件無しのためお好きなハウスメーカーや工務店で建築可能です♪最寄り駅の南海本線「淡輪駅」まで徒歩約4分と便利な立地です♪お気軽にお問合せお待ちしております♪
| 物件名 | No.11607199 岬町 淡輪 |
||
|---|---|---|---|
| 種別 | 売り土地 売地 (現況:更地) | ||
| 所在地 | 泉南郡岬町淡輪 | ||
| 交通 | 南海線 淡輪駅 徒歩4分 |
||
| 価格 | 1,980万円 (消費税:) | ||
| 土地(実測) | 土地(公簿) | 2040.13m2 | |

| 引渡時期 | 相談 | 引渡年月 | |
|---|---|---|---|
| 私道面積 | 地目 | 宅地 | |
| 土地権利 | 所有権 | 地勢 | 平坦 |
| 建蔽率 | 60% | 容積率 | 200% |
| 接道状況 | 一方 | 国土法届出 | 否 |
| 接道方向 | 北側 | 接道幅員 | 4m |
| 接道方向 | 接道幅員 | ||
| 接道内容 | |||
| 用途地域 | 第一種住居地域 | ||
| 都市計画 | 市街化 | ||
| 他制限 | |||
| 学校 | 岬町立淡輪小学校 岬町立岬中学校 | ||
| 設備 | 上水道 下水道 | ||
| 開発許可番号 | |||
| 備考 | ※当該物件敷地内に、淡輪城跡の土塁があり、一部開発制限があります。 ※有効面積約1740?です。 (U/ASK) |
||
取引態様 仲介 更新日 2026-04-04
リウイルトラスト 本店

〒598-0007
大阪府泉佐野市上町1丁目11-45
【店舗紹介・アクセスマップ】
リウイルトラスト 和泉中央店

〒594-1104
大阪府和泉市万町60-6
【店舗紹介・アクセスマップ】
受付時間/9:00〜18:00
定休日/火曜・水曜