おすすめ

和泉市伯太町2丁目中古戸建のご紹介です♪
家から24mの場所に和泉伯太郵便局があります♪
2駅利用できる場所にある為、利便性が高いです♪
駐車スペース、車種により2台駐車可能です♪
お気軽にお問い合わせください♪
| 物件名 | No.11577787 和泉市伯太町2丁目 |
||
|---|---|---|---|
| 種別 | 中古一戸建て (現況:空家) | ||
| 所在地 | 和泉市伯太町2丁目 | ||
| 交通 | JR阪和線 信太山駅 徒歩12分 |
||
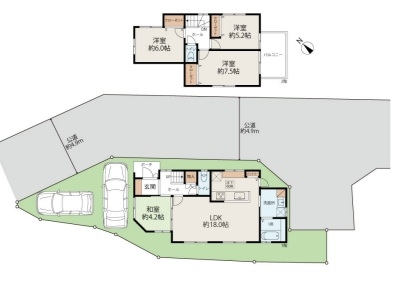
| 間取 | 4LDK | ||
| 価格 | 2,280万円 (消費税:) | ||
| 建物面積 | 92.33m2 | 築年月 | 2011年09月 |
| 土地(実測) | 土地(公簿) | 102.49m2 | |
| 学校 | 和泉市立伯太小学校 和泉市立和泉中学校 | ||
| 設備 | 上水道 下水道 バルコニー カウンターキッチン | ||

| 引渡時期 | 相談 | 引渡年月 | |
|---|---|---|---|
| 間取り | 4LDK | 方位 | |
| 私道面積 | 駐車場 | 空有 | |
| 土地権利 | 所有権 | 地勢 | 平坦 |
| 建蔽率 | 60% | 容積率 | 200% |
| 接道状況 | 一方 | 国土法届出 | |
| 接道方向 | 接道幅員 | 4.9m | |
| 接道方向 | 接道幅員 | ||
| 接道内容 | |||
| 構造 | 木造 | ||
| 間取備考 | |||
| 地目 | 宅地 | ||
| 用途地域 | 第二種住居地域 | ||
| 都市計画 | 市街化 | ||
| 他制限 | |||
| 建築確認番号 | |||
| 備考 | ※令和7年12月リフォーム完了予定:クロス・CFシート貼替:トイレ・洗面室・ホール・LDK、襖・障子張替、1階トイレ交換、レンジフード交換、インターホン交換、ダウンライト交換、バルコニー防水トップコート他(U/ASK) | ||
取引態様 仲介 更新日 2026-02-08
リウイルトラスト 本店

〒598-0007
大阪府泉佐野市上町1丁目11-45
【店舗紹介・アクセスマップ】
リウイルトラスト 和泉中央店

〒594-1104
大阪府和泉市万町60-6
【店舗紹介・アクセスマップ】
受付時間/9:00〜18:00
定休日/火曜・水曜