おすすめ
電話でのお問合せはこちら 
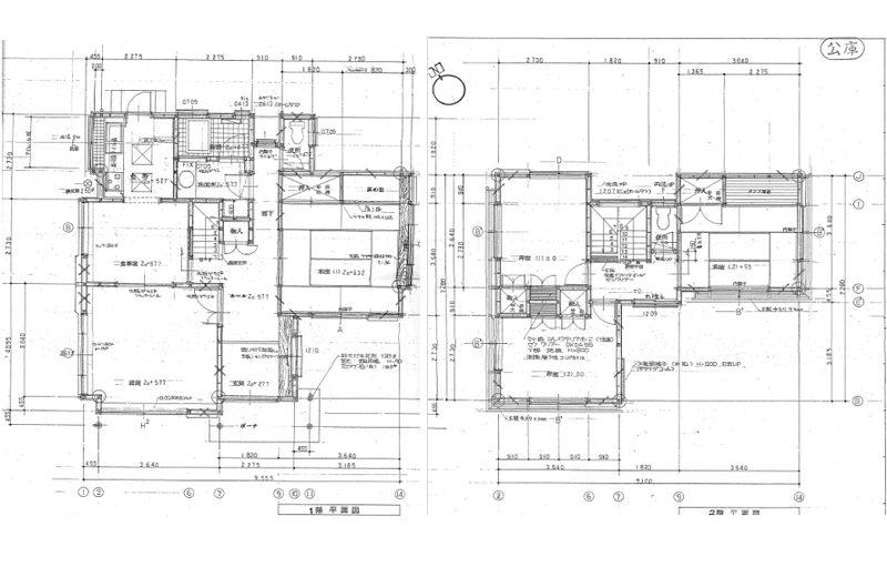
◆土地面積約70.01坪 ◆南西角地 ◆南海高野線『美加の台駅』より徒歩約9分 ◆4LDKのゆったりとした間取り
| 物件名 | No.11565030 河内長野市 美加の台7丁目 |
||
|---|---|---|---|
| 種別 | 中古一戸建て (現況:空家) | ||
| 所在地 | 河内長野市美加の台7丁目 | ||
| 交通 | 南海高野線 美加の台駅 徒歩9分 南海高野線 三日市町駅 徒歩28分 |
||
| 間取 | 4LDK | ||
| 価格 | 1,100万円 (消費税:) | ||
| 建物面積 | 135.46m2 | 築年月 | 1986年10月 |
| 土地(実測) | 土地(公簿) | 231.46m2 | |
| 学校 | 河内長野市立美加の台小学校 河内長野市立美加の台中学校 | ||
| 設備 | |||

| 引渡時期 | 即時 | 引渡年月 | |
|---|---|---|---|
| 間取り | 4LDK | 方位 | |
| 私道面積 | 駐車場 | 空有 | |
| 土地権利 | 所有権 | 地勢 | ひな段 |
| 建蔽率 | 40% | 容積率 | 80% |
| 接道状況 | 二方 | 国土法届出 | |
| 接道方向 | 南西側 | 接道幅員 | 5.4m |
| 接道方向 | 北西側 | 接道幅員 | 7m |
| 接道内容 | |||
| 構造 | 木造 | ||
| 間取備考 | |||
| 地目 | 宅地 | ||
| 用途地域 | 第一種低層住居専用地域 | ||
| 都市計画 | 市街化 | ||
| 他制限 | |||
| 建築確認番号 | |||
| 備考 | ※1階に鉄筋コンクリート造の陸屋根平屋建て物置有り(17.88平米) (S/W) |
||
取引態様 仲介 更新日 2024-12-19
リウイルトラスト 本店

〒598-0007
大阪府泉佐野市上町1丁目11-45
【店舗紹介・アクセスマップ】
リウイルトラスト 和泉中央店

〒594-1104
大阪府和泉市万町60-6
【店舗紹介・アクセスマップ】
受付時間/9:00〜18:00
定休日/火曜・水曜