おすすめ
| 物件名 | No.11548682 緑ヶ丘南町 中古戸建 |
||
|---|---|---|---|
| 種別 | 中古一戸建て (現況:空家) | ||
| 所在地 | 河内長野市緑ケ丘南町 | ||
| 交通 | 南海高野線 千代田駅 バス乗車13分 緑ヶ丘南町 停歩2分 南海高野線 河内長野駅 徒歩46分 |
||
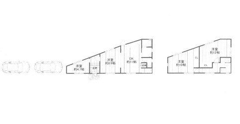
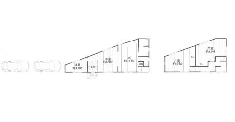
| 間取 | 4DK | ||
| 価格 | 1,490万円 (消費税:) | ||
| 建物面積 | 108.48m2 | 築年月 | 2010年07月 |
| 土地(実測) | 土地(公簿) | 136.7m2 | |
| 学校 | 河内長野市立天野小学校 河内長野市立西中学校 | ||
| 設備 | 下水道 オール電化 | ||

| 引渡時期 | 相談 | 引渡年月 | |
|---|---|---|---|
| 間取り | 4DK | 方位 | |
| 私道面積 | 駐車場 | 空有 | |
| 土地権利 | 所有権 | 地勢 | |
| 建蔽率 | 50% | 容積率 | 100% |
| 接道状況 | 一方 | 国土法届出 | |
| 接道方向 | 北西側 | 接道幅員 | 6.2m |
| 接道方向 | 接道幅員 | ||
| 接道内容 | |||
| 構造 | 木造 | ||
| 間取備考 | |||
| 地目 | 宅地 | ||
| 用途地域 | 第一種低層住居専用地域 | ||
| 都市計画 | 市街化 | ||
| 他制限 | |||
| 建築確認番号 | |||
| 備考 | ※盛土規制法 ※建築協定 (S/W) |
||
取引態様 仲介 更新日 2026-02-13
リウイルトラスト 本店

〒598-0007
大阪府泉佐野市上町1丁目11-45
【店舗紹介・アクセスマップ】
リウイルトラスト 和泉中央店

〒594-1104
大阪府和泉市万町60-6
【店舗紹介・アクセスマップ】
受付時間/9:00〜18:00
定休日/火曜・水曜