おすすめ

泉佐野市笠松から売旅館のご紹介です♪
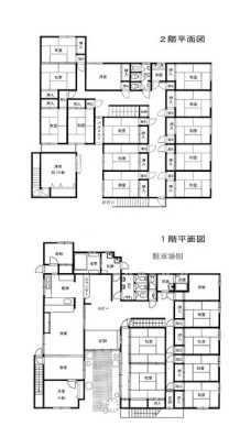
南海本線「りんくうタウン駅」徒歩約11分♪土地面積約364.34?♪鉄骨造の2階建て♪社員寮や学生寮のオススメ♪是非お問い合わせお待ちしております♪
| 物件名 | No.11038291 笠松2丁目 寮 |
||
|---|---|---|---|
| 種別 | その他 (現況:空家) | ||
| 所在地 | 泉佐野市笠松2丁目 | ||
| 交通 | 南海線 泉佐野駅 徒歩15分 南海空港線 りんくうタウン駅 徒歩13分 |
||
| 価格 | 9,500万円 (消費税:) | ||
| 専有(壁芯) | 500.06m2 | 専有(内法) | |
| 建物面積 | 築年月 | 1986年09月 | |
| 土地(実測) | 土地(公簿) | ||
| 学校 | 泉佐野市立第一小学校 泉佐野市立佐野中学校 | ||
| 設備 | PG | ||

| 引渡時期 | 即時 | 引渡年月 | |
|---|---|---|---|
| 所在階 | 方位 | ||
| 私道面積 | 駐車場 | 空無 | |
| 土地権利 | 所有権 | 地勢 | 平坦 |
| 接道状況 | 一方 | 国土法届出 | 否 |
| 接道方向 | 西側 | 接道幅員 | |
| 接道方向 | 接道幅員 | ||
| 接道内容 | 公道に接面 | ||
| 構造 | 鉄骨造 | ||
| 間取備考 | |||
| 地目 | 宅地 | ||
| 用途地域 | 準工業地域 | ||
| 都市計画 | 市街化 | ||
| 他制限 | |||
| 学校 | 泉佐野市立第一 泉佐野市立佐野 | ||
取引態様 仲介 更新日 2025-10-03
リウイルトラスト 本店

〒598-0007
大阪府泉佐野市上町1丁目11-45
【店舗紹介・アクセスマップ】
リウイルトラスト 和泉中央店

〒594-1104
大阪府和泉市万町60-6
【店舗紹介・アクセスマップ】
受付時間/9:00〜18:00
定休日/火曜・水曜