おすすめ
電話でのお問合せはこちら 
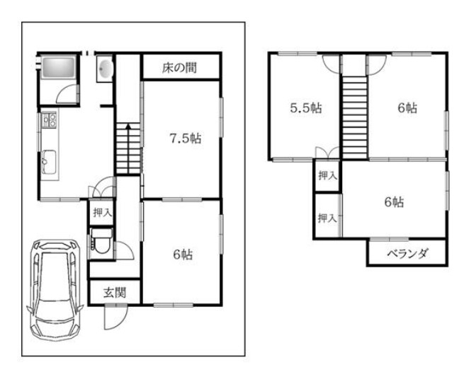
土地面積30.33坪! 5DKの間取り! 駐車1台可能! 南海電鉄本線「淡輪」駅まで徒歩13分!
岬町淡輪より中古戸建のご紹介です♪
土地面積は約30.33坪、セカンドハウス等にもお使いいただけます♪
間取りは5DK、お車1台駐車可能でございます♪
都市ガスに上下水道とライフラインは完備されております♪
ぜひ一度ご内覧いただきたいお家です♪お問い合わせお待ちしております♪
| 物件名 | No.11659575 |
||
|---|---|---|---|
| 種別 | 中古一戸建て (現況:空家) | ||
| 所在地 | 泉南郡岬町淡輪 | ||
| 交通 | 南海線 みさき公園駅 徒歩13分 南海線 淡輪駅 徒歩16分 |
||
| 間取 | 5DK | ||
| 価格 | 450万円 (消費税:) | ||
| 建物面積 | 84.96m2 | 築年月 | 1981年07月 |
| 土地(実測) | 土地(公簿) | 100.29m2 | |
| 学校 | |||
| 設備 | 電気 都市ガス 上水道 下水道 給湯 | ||

| 引渡時期 | 相談 | 引渡年月 | |
|---|---|---|---|
| 間取り | 5DK | 方位 | |
| 私道面積 | 駐車場 | 空有 | |
| 土地権利 | 所有権 | 地勢 | |
| 建蔽率 | 50% | 容積率 | 100% |
| 接道状況 | 一方 | 国土法届出 | 否 |
| 接道方向 | 南側 | 接道幅員 | 4.2m |
| 接道方向 | 接道幅員 | ||
| 接道内容 | |||
| 構造 | 木造 | ||
| 間取備考 | |||
| 地目 | 宅地 | ||
| 用途地域 | 第一種低層住居専用地域 | ||
| 都市計画 | 市街化 | ||
| 他制限 | |||
| 建築確認番号 | |||
| 備考 | ※法22条 ※宅地造成等規制法 (S/W) |
||
取引態様 仲介 更新日
リウイルトラスト 本店

〒598-0007
大阪府泉佐野市上町1丁目11-45
【店舗紹介・アクセスマップ】
リウイルトラスト 和泉中央店

〒594-1104
大阪府和泉市万町60-6
【店舗紹介・アクセスマップ】
受付時間/9:00〜18:00
定休日/火曜・水曜