おすすめ
田治米町の中古戸建のご紹介です♪
平成27年3月築です♪
閑静な住宅街です♪
室内きれいに使われています♪
BBQや家庭菜園を楽しめる裏庭付です♪
居住中につき内覧には予め予約が必要です♪
お気軽にお問い合わせください!!
| 物件名 | No.11622683 岸和田市 田治米町 |
||
|---|---|---|---|
| 種別 | 中古一戸建て (現況:居住中) | ||
| 所在地 | 岸和田市田治米町 | ||
| 交通 | 泉北高速鉄道 和泉中央駅 徒歩35分 |
||
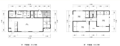
| 間取 | 4LDK | ||
| 価格 | 2,380万円 (消費税:) | ||
| 建物面積 | 92.13m2 | 築年月 | 2015年03月 |
| 土地(実測) | 土地(公簿) | 151.61m2 | |
| 学校 | |||
| 設備 | 電気 都市ガス 上水道 下水道 | ||

| 引渡時期 | 相談 | 引渡年月 | |
|---|---|---|---|
| 間取り | 4LDK | 方位 | |
| 私道面積 | 駐車場 | ||
| 土地権利 | 所有権 | 地勢 | 平坦 |
| 建蔽率 | 50% | 容積率 | 100% |
| 接道状況 | 一方 | 国土法届出 | |
| 接道方向 | 南東側 | 接道幅員 | 5.1m |
| 接道方向 | 接道幅員 | ||
| 接道内容 | |||
| 構造 | 木造 | ||
| 間取備考 | |||
| 地目 | 宅地 | ||
| 用途地域 | 第一種低層住居専用地域 | ||
| 都市計画 | 市街化 | ||
| 他制限 | |||
| 建築確認番号 | 第H26確認建築防大03346号 | ||
| 備考 | ※法22条、第1種高度地区、壁面後退1.0m、宅地造成気鋭区域(SS/) | ||
取引態様 仲介 更新日
リウイルトラスト 本店

〒598-0007
大阪府泉佐野市上町1丁目11-45
【店舗紹介・アクセスマップ】
リウイルトラスト 和泉中央店

〒594-1104
大阪府和泉市万町60-6
【店舗紹介・アクセスマップ】
受付時間/9:00〜18:00
定休日/火曜・水曜