新着物件
王子より中古戸建のご紹介です♪
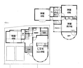
建物面積約30.18坪、4SLDKのお家です♪
カースペース付き、お車2台駐車可能です♪
前面道路幅員約6.5mと広々しております♪
周辺に商業施設があるため生活至便♪
各居室に収納があり、荷物の整理がはかどります♪
各居室6帖以上、窓から差し込む光が日常に彩りをもたらします♪
1階と2階とにトイレがあるため、昇り降りいらずで快適です♪
リビングの形状が独創的でおしゃれです♪
ぜひ一度見ていただきたいお家です♪お問い合わせお待ちしております♪
| 物件名 | No.10707556 王子 中古一戸建 |
||
|---|---|---|---|
| 種別 | 中古一戸建て (現況:居住中) | ||
| 所在地 | 貝塚市王子 | ||
| 交通 | JR阪和線 和泉橋本駅 徒歩15分 南海線 二色浜駅 徒歩26分 |
||
| 間取 | 4SLDK | ||
| 価格 | 1,850万円 (消費税:) | ||
| 建物面積 | 99.77m2 | 築年月 | 1999年06月 |
| 土地(実測) | 土地(公簿) | 102.34m2 | |
| 学校 | |||
| 設備 | 電気 都市ガス 上水道 浄化槽 給湯 システムキッチン 追い焚き シャンプードレッサー 床下収納 バルコニー フローリング TVドアホン カウンターキッチン | ||

| 引渡時期 | 相談 | 引渡年月 | |
|---|---|---|---|
| 間取り | 4SLDK | 方位 | |
| 私道面積 | 駐車場 | 空有 | |
| 土地権利 | 所有権 | 地勢 | |
| 建蔽率 | 60% | 容積率 | 200% |
| 接道状況 | 一方 | 国土法届出 | 否 |
| 接道方向 | 西側 | 接道幅員 | 6.9m |
| 接道方向 | 接道幅員 | ||
| 接道内容 | 公道に接面 | ||
| 構造 | 木造 | ||
| 間取備考 | LDK12.4帖 和6帖 洋6帖×2 洋7帖 | ||
| 地目 | 宅地 | ||
| 用途地域 | 第一種住居地域 | ||
| 都市計画 | 市街化 | ||
| 他制限 | |||
| 建築確認番号 | |||
| 備考 | ※改装年月:2018年10月 ※※現状、個別浄化槽を使用しておりますが令和8年8月頃、前面道路に下水管が埋設される予定です。公共下水を引込む場合には、受益者負担金や引込工事費、浄化槽撤去費用等、費用が必要となります。 ※【その他法令制限】法22条、文化財保護法(名称:王子西遺跡) (S/W) |
||
取引態様 仲介 更新日
リウイルトラスト 本店

〒598-0007
大阪府泉佐野市上町1丁目11-45
【店舗紹介・アクセスマップ】
リウイルトラスト 和泉中央店

〒594-1104
大阪府和泉市万町60-6
【店舗紹介・アクセスマップ】
受付時間/9:00〜18:00
定休日/火曜・水曜